Offre immobilière N°
31067107988
2662LOT6JC02
Terrain constructible
32000 AUCH
Prix : 55 274 € *
- Pièce(s) : NC
- Chambre(s) : NC
- Surface Habitable : NC
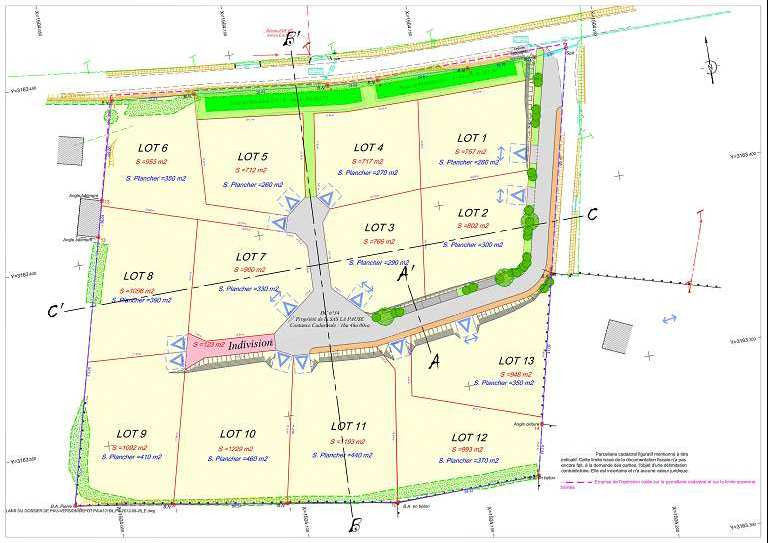
- Surface Terrain : 953 m²
Ce bien ne figure plus au catalogue car il est sous compromis.
FBimmobilier 31 vous propose de venir découvrir votre terrain sur les treize parcelles proposées initiallement, il ne reste qu'un lot.Ce lot 6 de 953m2 viabilisé (avec tout à l'égout) à vendre au sein d'un lotissement, à deux pas du centre ville d'Auch. Pour de plus amples renseignements, n'hésitez pas à contacter l'agence au 05.61.49.70.70 ou au 06.76.83.26.01
Les informations sur les risques auxquels ce bien est exposé sont disponibles sur le site Géorisques
Notre barème d'honoraires
* Honoraires charge vendeur.


























